Arche & Melody 2014 - page 21

Evolutions Arche, Melody 2014
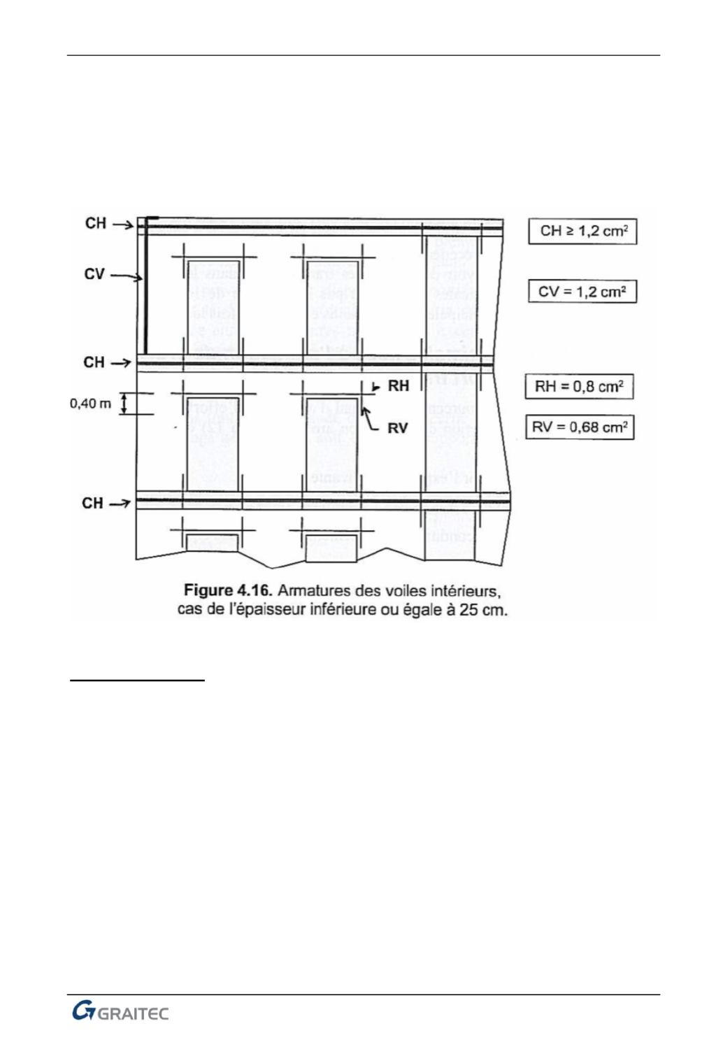
Ces mêmes ouvertures doivent également être bordées par des
armatures horizontales (repère RH ci-dessous), d’une section d’au
moins 0.80cm², convenablement ancrées en fonction du diamètre
de la barre.
Voiles extérieurs
Pour les voiles extérieurs, de façon générale, les dispositions constructives à
respecter sont les suivantes :
Le ferraillage vertical des voiles (noté AV ci-dessous) constituant
tout ou partie d’une façade ou d’un pignon doit en outre constituer
une armature de peau continue d’au moins 0.48cm²/ml.
L’espacement de cette armature de peau ne doit pas excéder 50cm.
Cette section est portée à 0.80cm²/ml à la reprise basse de tout
voile du niveau sous terrasse (notation AT sur le schéma ci-
dessous).
De même ; le ferraillage horizontal des voiles (noté AH ci-dessous)
doit en outre constituer une armature de peau d’au moins
0.96cm²/ml avec un espacement maximal de 33cm.
21
1...,11,12,13,14,15,16,17,18,19,20 22,23,24,25,26,27,28,29,30,31,...86
Powered by FlippingBook